I. Nét Đẳng Cấp Trong Phong Cách Nhà Phố Hiện Đại
Phong cách kiến trúc hiện đại từ lâu đã khẳng định vị thế của mình như một lựa chọn hàng đầu cho những ai yêu thích sự tinh tế, sang trọng nhưng vẫn đề cao tính ứng dụng. Điểm nổi bật của phong cách này chính là sự đơn giản hóa trong thiết kế, loại bỏ hoàn toàn những chi tiết rườm rà, cầu kỳ hay các họa tiết trang trí phức tạp. Thay vào đó, kiến trúc sư tập trung vào việc tạo nên những đường nét mạch lạc, dứt khoát, cùng với các hình khối mạnh mẽ, rõ ràng, mang đến một tổng thể kiến trúc đầy ấn tượng và hiện đại.
Việc sử dụng các vật liệu công nghiệp như kính, thép, bê tông, hay gỗ công nghiệp không chỉ giúp tăng cường độ bền và tính thẩm mỹ mà còn góp phần tạo nên vẻ đẹp đặc trưng của nhà phố hiện đại. Đặc biệt, những yếu tố then chốt như sự thông thoáng tối đa, việc tận dụng ánh sáng tự nhiên một cách hiệu quả và tối ưu hóa mọi không gian sống đều được đặt lên hàng đầu. Điều này giúp các căn nhà phố, dù có diện tích đất hạn chế, vẫn mang đến cảm giác rộng rãi, thoáng đãng và vô cùng thoải mái cho gia chủ, tạo nên một không gian sống lý tưởng, hài hòa giữa công năng và thẩm mỹ.






II. Khám Phá Mẫu Nhà Phố 3 Tầng Hiện Đại Tiêu Biểu
Để giúp bạn có cái nhìn cụ thể và rõ nét hơn về một không gian sống hiện đại, tiện nghi, chúng ta hãy cùng khám phá bố cục công năng của một mẫu nhà phố 3 tầng tiêu biểu được đội ngũ kiến trúc sư chuyên nghiệp tại Đức Thảo tỉ mỉ thiết kế:
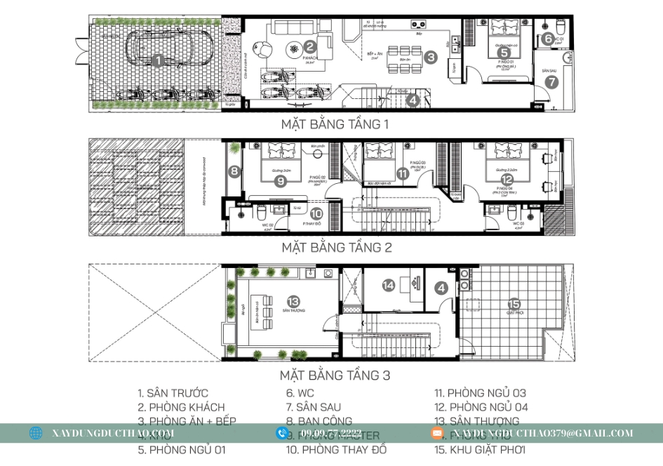
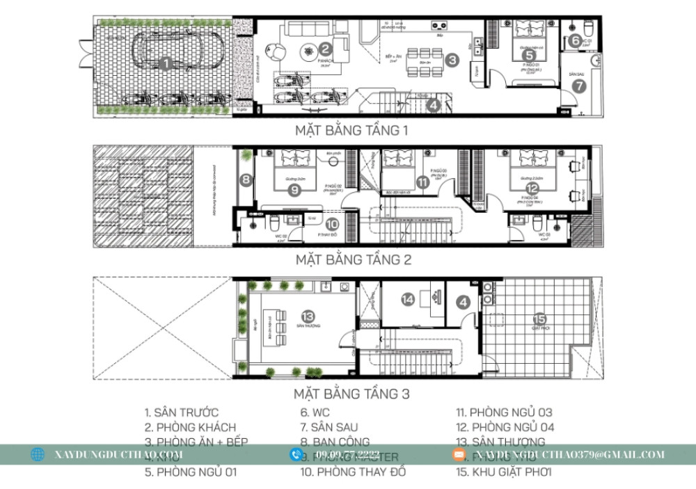
Tầng 1: Không gian sinh hoạt chung và tiện ích đa năng
Tầng trệt của mẫu nhà phố này được tối ưu hóa để trở thành trung tâm của mọi hoạt động gia đình. Phòng khách được thiết kế rộng rãi, tạo cảm giác thông thoáng và sang trọng ngay khi bước vào. Đặc biệt, không gian này được bố trí liền mạch với khu vực phòng bếp và phòng ăn, tạo nên một tổng thể mở, khuyến khích sự tương tác và gắn kết giữa các thành viên. Bố cục này không chỉ giúp tối đa hóa diện tích sử dụng mà còn mang lại cảm giác rộng rãi, thoáng đãng cho toàn bộ tầng 1. Bên cạnh đó, sự tiện lợi còn được thể hiện rõ với một phòng ngủ được bố trí khéo léo tại tầng này, rất phù hợp cho người lớn tuổi trong gia đình hoặc có thể dùng làm phòng dành cho khách ghé thăm. Một nhà vệ sinh chung cũng được đặt gần đó, đảm bảo sự tiện nghi tối đa cho mọi người.



Tầng 2: Nơi nghỉ ngơi riêng tư và thư giãn
Di chuyển lên tầng 2, bạn sẽ khám phá không gian riêng tư dành cho việc nghỉ ngơi và tái tạo năng lượng. Tầng này bao gồm ba phòng ngủ thoải mái, mỗi phòng đều được thiết kế với sự chú trọng đặc biệt đến ánh sáng và thông gió tự nhiên, đảm bảo mang lại không khí trong lành và dễ chịu. Các cửa sổ lớn, ban công nhỏ được tính toán kỹ lưỡng để đón nắng và gió, giúp căn phòng luôn tươi mới. Để đáp ứng nhu cầu sinh hoạt của nhiều thành viên, tầng 2 còn được trang bị hai nhà vệ sinh riêng biệt, đảm bảo sự thuận tiện và riêng tư. Đặc biệt, một ban công thoáng đãng được tích hợp, là nơi lý tưởng để gia chủ có thể thư giãn, đọc sách hay đơn giản là tận hưởng không khí trong lành sau một ngày dài.
Tầng 3: Không gian tâm linh và đa dạng tiện ích ngoài trời
Tầng 3 của ngôi nhà là sự kết hợp hoàn hảo giữa không gian tâm linh và các tiện ích đa năng. Một phòng thờ trang nghiêm được bố trí ở vị trí yên tĩnh và trang trọng, là nơi gia chủ thể hiện lòng thành kính và giữ gìn nét đẹp văn hóa truyền thống. Điểm nhấn đặc biệt của tầng này chính là sân thượng rộng lớn. Đây không chỉ là khu vực giặt phơi tiện lợi mà còn có thể biến hóa thành một vườn cây mini xanh mát, mang thiên nhiên vào không gian sống. Thậm chí, với diện tích đủ lớn, sân thượng còn là địa điểm lý tưởng để tổ chức các buổi tiệc nướng BBQ ngoài trời, tụ họp bạn bè hoặc đơn giản là nơi cả gia đình cùng ngắm cảnh, mang lại giá trị sống cao và những trải nghiệm đáng nhớ cho gia đình.


III. Đức Thảo - 15 Năm Kinh Nghiệm Kiến Tạo Không Gian Sống
Trong hành trình kiến tạo những tổ ấm mơ ước, Công ty Thiết kế và Xây dựng Đức Thảo tự hào là một trong những đơn vị hàng đầu với 15 năm kinh nghiệm vững chắc trong lĩnh vực thiết kế và thi công nhà ở tại Việt Nam. Trải qua hơn một thập kỷ hoạt động, chúng tôi đã không ngừng tích lũy kiến thức, hoàn thiện kỹ năng và xây dựng một nền tảng vững chắc trong ngành xây dựng.
Với đội ngũ kiến trúc sư và kỹ sư chuyên nghiệp, giàu kinh nghiệm và đầy nhiệt huyết, Đức Thảo đã và đang biến hàng trăm ý tưởng thành những công trình thực tế, chất lượng cao và mang tính thẩm mỹ vượt trội. Mỗi dự án mà chúng tôi thực hiện không chỉ là một công trình xây dựng mà còn là một tác phẩm nghệ thuật, được chăm chút tỉ mỉ từ khâu lên ý tưởng, thiết kế đến thi công hoàn thiện. Chúng tôi luôn lắng nghe và thấu hiểu mọi yêu cầu khắt khe nhất của khách hàng, từ những mong muốn về phong cách kiến trúc, bố cục công năng cho đến ngân sách và tiến độ.
Đức Thảo cam kết mang đến những giải pháp thiết kế tối ưu, không chỉ đẹp về mặt hình thức mà còn phải chuẩn mực về công năng, phù hợp với lối sống và nhu cầu của từng gia đình. Quá trình thi công chuẩn mực, áp dụng công nghệ tiên tiến và quy trình quản lý chất lượng nghiêm ngặt, luôn là ưu tiên hàng đầu của chúng tôi. Chúng tôi tự tin đảm bảo tiến độ thi công và chất lượng công trình cho từng dự án, mang lại sự an tâm tuyệt đối cho khách hàng khi gửi gắm niềm tin vào Đức Thảo. Sự hài lòng và tin tưởng của quý khách chính là động lực lớn nhất để chúng tôi không ngừng phát triển và hoàn thiện mình mỗi ngày.
IV. Lợi Ích Khi Chọn Đức Thảo Thiết Kế và Thi Công
Khi bạn quyết định đặt niềm tin vào Đức Thảo làm đối tác để kiến tạo ngôi nhà mơ ước, bạn không chỉ nhận được một công trình, mà còn là một trải nghiệm toàn diện với hàng loạt lợi ích vượt trội:
Thiết Kế Độc Đáo và Tối Ưu Hóa Công Năng: Mỗi dự án tại Đức Thảo là một câu chuyện riêng, được "chắp bút" từ sự kết hợp hài hòa giữa ý tưởng, mong muốn của gia chủ và kinh nghiệm chuyên môn sâu rộng của đội ngũ kiến trúc sư tài năng. Chúng tôi không chỉ tạo ra những bản vẽ đẹp mắt mà còn tập trung vào việc tối ưu hóa công năng sử dụng, đảm bảo mỗi mét vuông đều được tận dụng hiệu quả nhất, mang lại sự tiện nghi tối đa trong sinh hoạt hàng ngày. Kết quả là một không gian sống không chỉ có tính thẩm mỹ vượt trội mà còn phản ánh rõ nét phong cách và cá tính của chủ sở hữu.
Chất Lượng Thi Công Vượt Trội và Bền Vững: Đức Thảo tự hào về quy trình làm việc chuyên nghiệp và minh bạch, từ khâu chuẩn bị vật liệu đến thực hiện từng hạng mục. Với sự giám sát chặt chẽ bởi đội ngũ kỹ sư giàu kinh nghiệm, chúng tôi cam kết mang đến những công trình không chỉ đẹp về mặt hình thức mà còn bền vững vượt trội theo thời gian. Việc sử dụng vật liệu chất lượng cao, áp dụng kỹ thuật thi công tiên tiến và tuân thủ nghiêm ngặt các tiêu chuẩn xây dựng là nền tảng để mỗi ngôi nhà Đức Thảo đều là một tác phẩm kiến trúc kiên cố và an toàn.
Tiết Kiệm Thời Gian và Chi Phí Hiệu Quả: Hiểu được những lo lắng của khách hàng về thời gian và chi phí, Đức Thảo cung cấp giải pháp trọn gói từ A đến Z, bao gồm toàn bộ quá trình từ thiết kế ban đầu đến thi công hoàn thiện. Điều này giúp gia chủ tiết kiệm đáng kể thời gian và công sức trong việc tìm kiếm, lựa chọn và phối hợp giữa nhiều đơn vị khác nhau. Đồng thời, giải pháp trọn gói còn giúp kiểm soát chặt chẽ các chi phí phát sinh không đáng có, đảm bảo ngân sách được sử dụng hiệu quả và minh bạch nhất.
Dịch Vụ Hậu Mãi Chu Đáo và Tận Tâm: Tại Đức Thảo, mối quan hệ với khách hàng không kết thúc khi công trình được bàn giao. Chúng tôi luôn đề cao và duy trì dịch vụ hậu mãi chu đáo, sẵn sàng đồng hành cùng quý khách ngay cả sau khi ngôi nhà đi vào sử dụng. Bất kỳ vấn đề hay thắc mắc nào phát sinh, đội ngũ của chúng tôi sẽ có mặt để hỗ trợ kịp thời, đảm bảo sự hài lòng tuyệt đối và mang lại sự an tâm trọn vẹn cho mọi gia đình.
V. Lời Kết
Một ngôi nhà không chỉ là nơi để ở mà còn là không gian để tận hưởng cuộc sống, nơi thể hiện cá tính và phong cách của gia chủ. Với kinh nghiệm và tâm huyết, Công ty Thiết kế và Xây dựng Đức Thảo tin rằng sẽ kiến tạo nên những tổ ấm hiện đại, sang trọng và đẳng cấp, mang lại giá trị bền vững cho mỗi gia đình Việt.
Đừng ngần ngại liên hệ ngay với Đức Thảo để biến ước mơ về ngôi nhà phố hiện đại của bạn thành hiện thực!
Hotline/Zalo: 0909 77 2222
Website: https://xaydungducthao.com/
Địa chỉ văn phòng: 435/284/17 Phạm Văn Đồng, P.11, Quận Bình Thạnh, TP.HCM
Chúng tôi luôn sẵn sàng đồng hành cùng bạn từ bản vẽ đầu tiên cho đến ngày hoàn công.